
TIL OVER PRISEN - LIGNENDE HUS SØGES TIL KØBERE I MIT KØBERKARTOTEK!solgt


.jpg/lg)

.jpg/lg)

TIL OVER PRISEN - LIGNENDE HUS SØGES TIL KØBERE I MIT KØBERKARTOTEK!
solgtMannadalen 59, 9260 Gistrup
SOLGT TIL OVER PRISEN PÅ 2 MÅNEDER - LIGNENDE SOMMERHUS / GRUND SØGES TIL KØBERE I MIT KØBERKARTOTEK
Skønt og højtbeliggende sommerhus med attraktiv beliggenhed på dejlig naturgrund og omgivet af grønt i
Lundby Bakker, Gistrup.
Med fritidshuset hér på Mannadalen 59 befinder du dig bogstaveligt talt i skovens dybe stille ro. Her er du
omgivet af grønt, og på den hele 3.534 m2 stor grund er du i ugeneret nærkontakt med Lundby Bakkers
skønne natur.
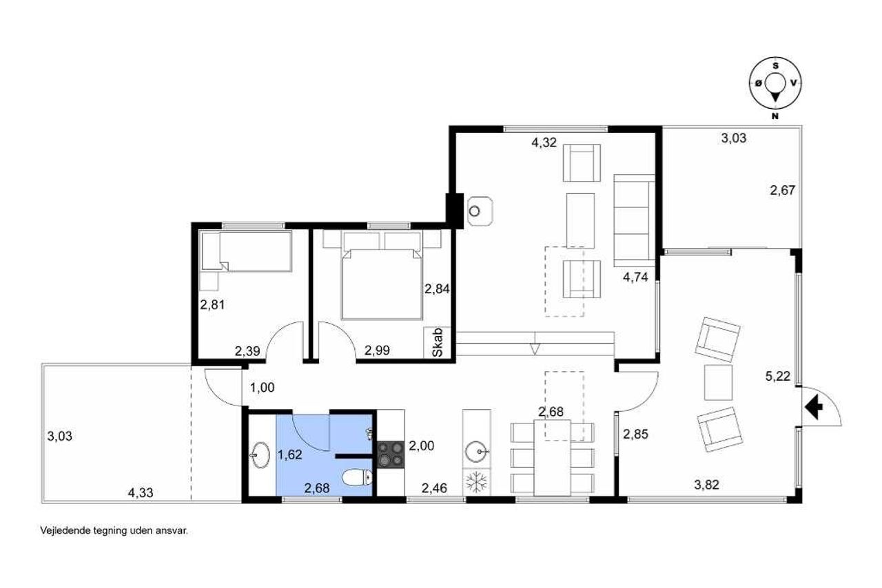
Det hyggelige træhus fra 1986 og giver dig et veludnyttet areal på 85 m2 samt mindre udhus og
brændeskur. Den store og kuperede grund strækker sig på den ene side af den lille, stille vej, og ud over
selve størrelsen er også den kuperede beskaffenhed med tilhørende bjergstemning værd at bemærke.
Selve fritidshusets planløsning er disponeret med køkken og alrum og i åben forbindelse til hyggelig stue
med brændeovn, hvorfra der er udgang til skøn udestue og dejlig terrasse, og i husets modsatte ende får
du et soveværelse og godt værelse samt et badeværelse. Herfra er der også udgang til dejlig træterrasse.
Der er loft til kip som giver en god rum fornemmelse i huset.
Hele vejen rundt om huset er der dejlige terrasser og skønne hyggekroge med udsigt til den skønne natur
og skovens dyreliv lige udenfor.
Sommerhuset fremtræder velholdt og indflytningsklar og skal absolut opleves!
Området er særdeles populært for gåture, løbeture og MTB-cykling, hvor der findes mange forskellige
ruter i området, og yndet udflugtsmål.
Kontakt mig for at kigge nærmere på den dejlige ejendom på tlf. 6115 1513.
.
Skønt og højtbeliggende sommerhus med attraktiv beliggenhed på dejlig naturgrund og omgivet af grønt i
Lundby Bakker, Gistrup.
Med fritidshuset hér på Mannadalen 59 befinder du dig bogstaveligt talt i skovens dybe stille ro. Her er du
omgivet af grønt, og på den hele 3.534 m2 stor grund er du i ugeneret nærkontakt med Lundby Bakkers
skønne natur.
Det hyggelige træhus fra 1986 og giver dig et veludnyttet areal på 85 m2 samt mindre udhus og
brændeskur. Den store og kuperede grund strækker sig på den ene side af den lille, stille vej, og ud over
selve størrelsen er også den kuperede beskaffenhed med tilhørende bjergstemning værd at bemærke.
Selve fritidshusets planløsning er disponeret med køkken og alrum og i åben forbindelse til hyggelig stue
med brændeovn, hvorfra der er udgang til skøn udestue og dejlig terrasse, og i husets modsatte ende får
du et soveværelse og godt værelse samt et badeværelse. Herfra er der også udgang til dejlig træterrasse.
Der er loft til kip som giver en god rum fornemmelse i huset.
Hele vejen rundt om huset er der dejlige terrasser og skønne hyggekroge med udsigt til den skønne natur
og skovens dyreliv lige udenfor.
Sommerhuset fremtræder velholdt og indflytningsklar og skal absolut opleves!
Området er særdeles populært for gåture, løbeture og MTB-cykling, hvor der findes mange forskellige
ruter i området, og yndet udflugtsmål.
Kontakt mig for at kigge nærmere på den dejlige ejendom på tlf. 6115 1513.
.
Torben Svendsen
Ejendomsmægler, MDE og Indehaver
Skriv dig op i mit køberkartotek
Så finder vi sammen den rigtige vej til dit nye hjem.


